


* Na zapytanie możliwość zmiany odbiornika, pilotów, fotokomórek, lampy na inne z oferty ROGER.

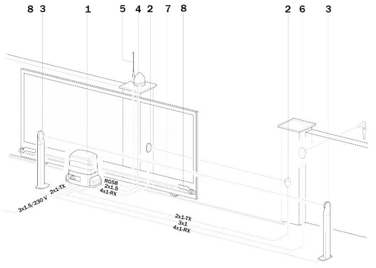
1 – motoreduktor
2 – fotokomórki
3 – fotokomórki w kolumienkach
4 – lampa ostrzegawcza
5 – antena do lampy ostrzegawczej
6 – przełącznik kluczykowy
7 – listwa zębata
8 – wyłącznik magnetyczny


Zasilanie centrali/Zasilanie silnika (V):
230/230
Moc pobierana (W):
350
Natężenie prądu (A):
1.2
Stopień zabezpieczenia (IP):
43
Prędkość liniowa bramy (m/s):
0.16
Temperatura pracy (st.C min/max):
-20/+55
Klasa izolacji:
1
Intensywność pracy (%):
50
Ciężar (kg):
16
Wersja napędu super szybka:
Nie
Waga bramy (kg):
do 800
Silnik (V):
230
Max. siła (N):
500
Wymiary (mm):
325 x 162 x 294